Vítejte v GEMA Shop - váš odborník na vytápění, solární a sanitární techniku ​​již od roku 1991. Osobně vám poradíme a nabídneme technická řešení, která skutečně fungují.
  • rychlé odeslání

  • Bezplatná pomoc a poradenství

  • Otevřeno 7 dní v týdnu

Anhaltinerring 17, 39439 Güsten

A.B.S.  |  SKU: HP-FB18

Silo na pelety PLOCHÁ PODLAHA vč. rám

Jméno: A.B.S. Silo- und Förderanlagen GmbH

Adresa: Industriepark 100, 74706 Osterburken

E-mail: info@abs-silos.de

Webová stránka: https://abs-silos.de/

Evropský výrobce: Ano

Normální cena 2.928,16 €
inkl. MwSt. Kostenloser Versand innerhalb Deutschland

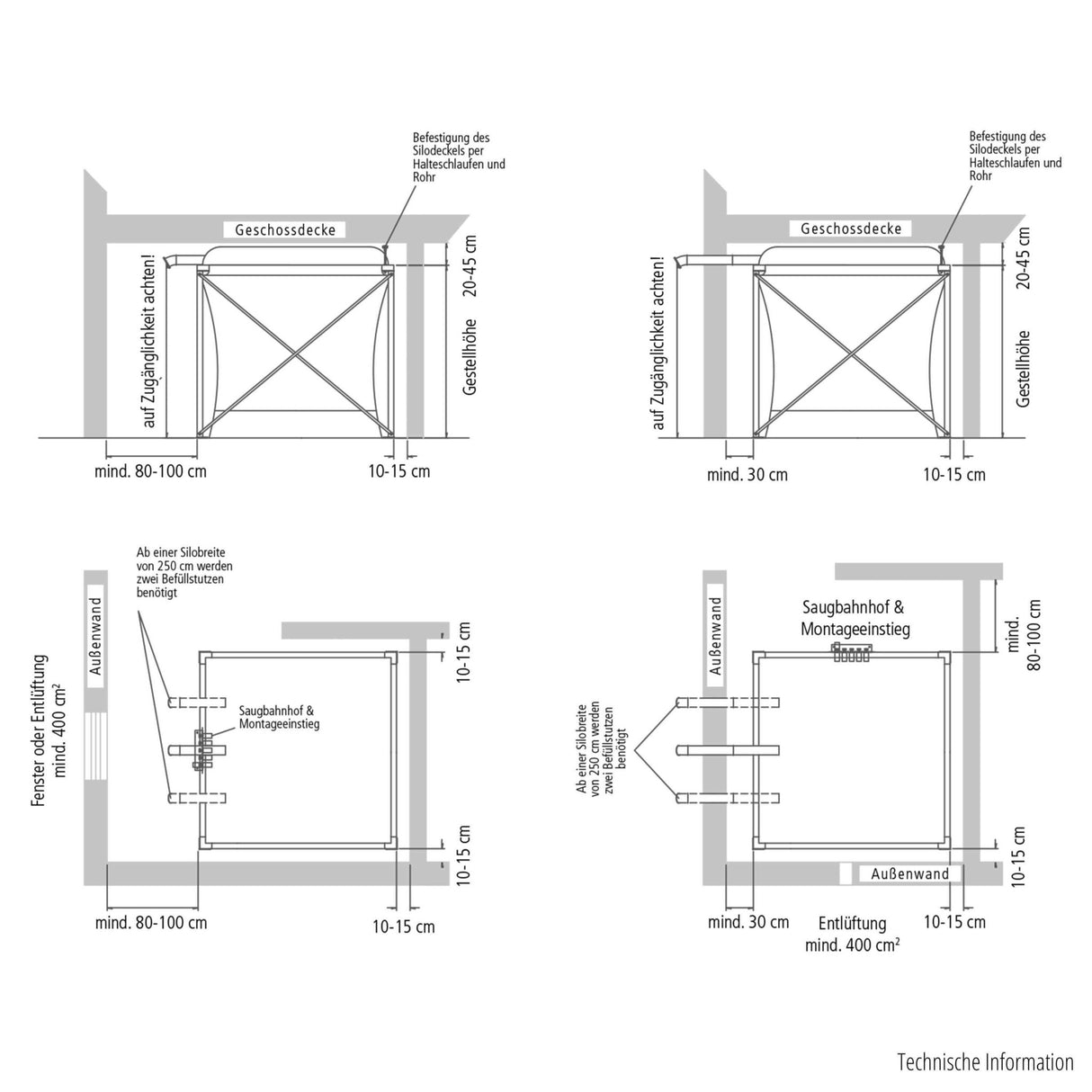
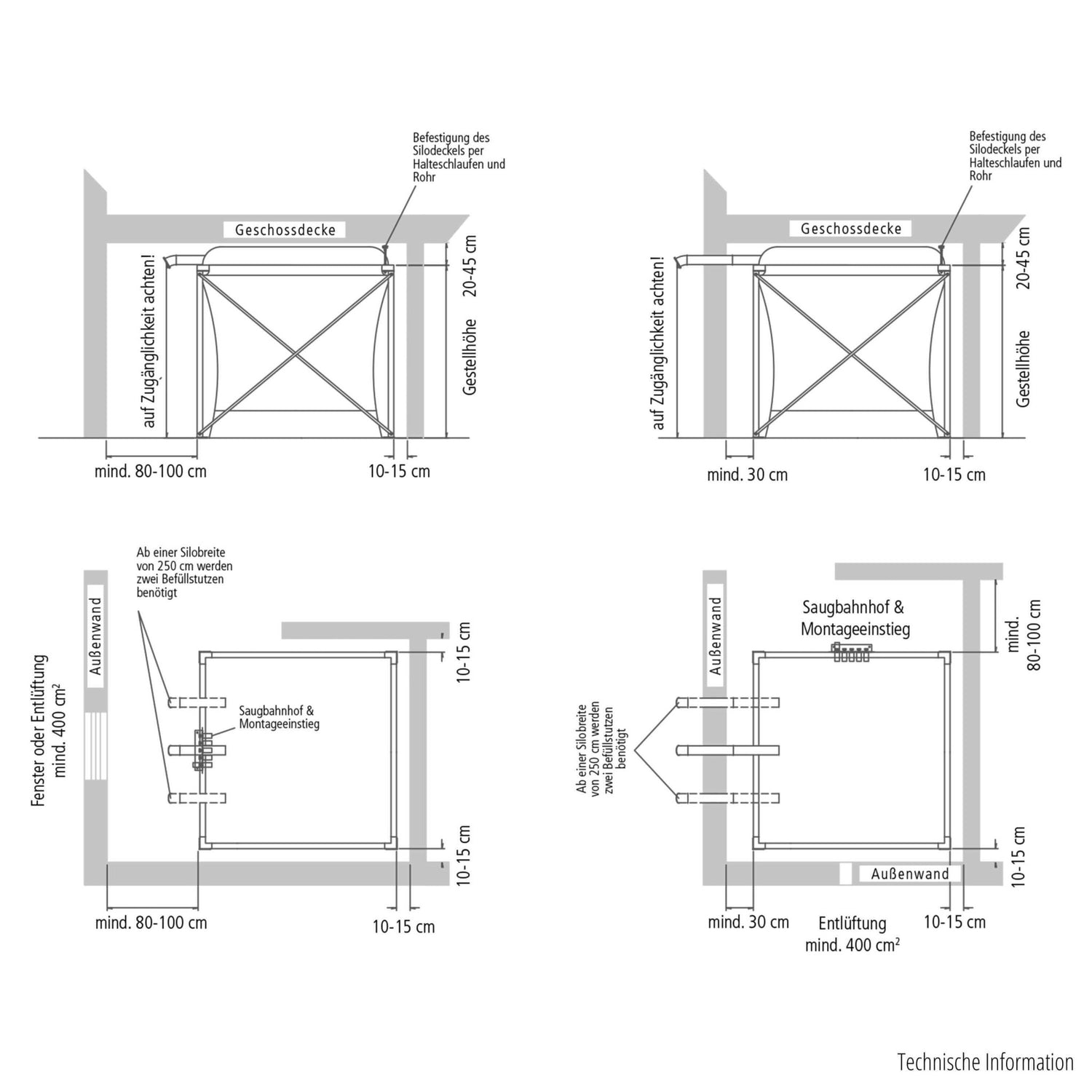
Rozměry rámu
Výška místnosti

Doručení a expedice

Doba zpracování je obvykle 1 pracovní den. Dodací lhůta balíkového zboží je 1-3 pracovní dny. U přepravovaného zboží je dodací lhůta 3-5 pracovních dnů. Dodací lhůty mimo Německo jsou odlišné.

Beschreibung

Silo na pelety s plochým dnem, včetně rámu

A.B.S. Silo na pelety s plochým dnem – cenově atraktivní řešení s plnou kapacitou – lepší už to být nemůže

z A.B.S.

S krychlovým tvarem Flexilo® ROVNÁ PODLAHA (patent č. 10 2009 033 230) od A.B.S. Skladovací prostor pelet je využit z 80 až 90 %. To umožňuje optimální a prostorově úsporné skladování dřevěných pelet téměř v každé místnosti, a to i s nízkými stropy.

Hlavní body Silo na pelety

  • Maximální objem plnění: Lze využít až 90 % úložného prostoru pelet.
  • Snadná a rychlá montáž
  • Standardně dodávané odtokové hrdlo pro ruční vyjmutí
  • Sací přípojky, instalační přístup, ruční odsávání a plnicí potrubí lze instalovat na libovolnou stranu dle vašich specifikací.
  • Vlastní rozměry pro každou aplikaci

Rozsah dodávky Flexilo® PLOCHÁ ZÁKLADNA HP 18 včetně rámu

  • Silo vak s všitou protinárazovou stěnou
  • Pozinkovaný ocelový rám jako zásuvný systém včetně montážního materiálu.
  • Vhodný plnicí systém (standardní boční plnění)
  • Obsahuje: 5 sacích sond, ruční spínací jednotku a sací hadice uvnitř.
  • Nosná konstrukce pro víko sila (trubku musí zajistit zákazník)
  • Návod k montáži

Platba a bezpečnost

Možnosti platby

  • American Express
  • Apple Pay
  • Bancontact
  • BLIK
  • EPS
  • Google Pay
  • iDEAL Wero
  • Klarna
  • Maestro
  • Mastercard
  • MobilePay
  • PayPal
  • Przelewy24
  • Shop Pay
  • Union Pay
  • Visa

Vaše platební údaje jsou zpracovávány bezpečně. Neuchováváme informace o kreditní kartě a nemáme přístup k informacím o vaší kreditní kartě.

Kontaktujte nás