IBC puugaasikatel GK-7k-Öko – Tõhus & Ökoloogiliselt

Telefon +49(0)39262 878720

E-post: gemashop@gema-net.de

WhatsApp: +49(0)17660429928

  • kiire saatmine

  • Tasuta abi ja nõu

  • Probleemideta tagastamine

  • Avatud 7 päeva nädalas

Anhaltinerring 17, 39439 Güsten

Avatud E-N 7.00-17.00; P 7.00–16.00; laupäev 9-12

IBC  |  SKU: IBCGK730

IBC puidugaasistuskatel GK-7k-Öko – malmkatel, mis on efektiivne & ökoloogiliselt 🌲🔥

Tavaline hind 18,178.00 лв
sisaldab käibemaksu. Saadetis võetakse tasu kassas.


Kohaletoimetamine ja saatmine

Töötlemisaeg on tavaliselt 1 tööpäev. Pakkide kohaletoimetamine on 1-3 tööpäeva. Kaubaveo puhul on tarneaeg 3-5 tööpäeva. Väljaspool Saksamaad on tarneajad erinevad.

Beschreibung

IBC puugaasikatel GK-7k-öko – Tõhus ja keskkonnasõbralik küte

See Malmist katlad IBC GK-7k-öko puugaasikatel on ideaalne lahendus keskkonnasõbralikuks ja kulutõhusaks puukütteks. Tipptasemel puugaasitehnoloogiaga mudel ühendab endas energiatõhususe, vastupidavuse ja keskkonnasõbralikkuse. See sobib ideaalselt leibkondadele, kes soovivad vähendada küttekulusid ja samal ajal panustada kliimakaitsesse.

Tõhus puidu gaasistamise tehnoloogia

See Malmist katlad tugineb uuenduslikule puidu gaasistamise tehnoloogiale, mis võimaldab kütust eriti tõhusalt kasutada. Puit gaasistatakse esmalt spetsiaalses põlemiskambris, enne kui saadud gaasid teises protsessis täielikult põletatakse. See kaheastmeline põlemine mitte ainult ei taga suuremat energiatootlust, vaid minimeerib ka heitkoguseid.

Tänu kõrgele efektiivsusele saate saavutada ühtlase ja usaldusväärse küttevõimsuse isegi väikese puidukuluga. IBC Malmist katlad Seega on GK-7k-öko energiatõhus ja jätkusuutlik küttelahendus.

Keskkonnasõbralikkus ja madal heitkogus

IBC puugaasikatla peamine eelis on selle madal heitkogus. Tõhus põlemistehnoloogia minimeerib tahmaosakeste ja muude heitgaaside teket. See tähendab, et katel vastab kõige rangematele keskkonnastandarditele ja sobib ideaalselt keskkonnateadlikele kasutajatele.

Lisaks on puit taastuv ressurss, mis põleb CO₂-neutraalselt. See teeb IBC GK-7k-öko puugaasikatlast jätkusuutliku alternatiivi fossiilkütustele, nagu nafta või gaas.

Kompaktne disain ja lihtne paigaldus

Oma kompaktse disainiga on GK-7k-öko nii ruumisäästlik kui ka hõlpsasti paigaldatav. Katel sobib hõlpsasti igasse küttesüsteemi ja seda saab sujuvalt integreerida olemasolevatesse süsteemidesse. Selle konstruktsioon tagab, et isegi väiksemaid katlaruume saab optimaalselt ära kasutada.

Lisaks on paigaldustöö minimaalne, seega saavad isegi vähem tehniliselt taibukad kasutajad sujuvast paigaldusest kasu. Kasutajasõbralik liides lihtsustab seadme juhtimist ja jälgimist.

Suur vastupidavus ja vastupidavad materjalid

See Malmist katlad IBC GK-7k-öko puugaasikatel on valmistatud kvaliteetsetest ja vastupidavatest materjalidest, mis tagavad pika kasutusea. Kuumus- ja korrosioonikindlad komponendid tagavad usaldusväärse töö isegi intensiivse kasutamise korral paljudeks aastateks.

Läbimõeldud disain ja vastupidav konstruktsioon muudavad katla pikaajaliseks tulusaks investeeringuks. Tänu vastupidavusele jäävad hoolduskulud kontrolli alla ja kasutajad saavad loota pidevalt kõrgele jõudlusele.

Lihtne puhastamine ja hooldus

IBC puugaasikatla teine ​​eelis on selle lihtne puhastamine ja hooldamine. Katel on konstrueeritud nii, et jäägid ja tuhk saab kiiresti ja vaevata eemaldada. Regulaarsed hooldusintervallid on lihtsad, säästes aega ja vaeva.

Tänu optimeeritud konstruktsioonile püsib katla efektiivsus aja jooksul pidevalt kõrge, samas kui tegevuskulud jäävad madalaks. See muudab IBC puugaasikatla eriti kasutajasõbralikuks ja sobivaks igapäevaseks kasutamiseks.

Kokkuvõte: ökonoomne ja jätkusuutlik küttelahendus

IBC puugaasikatel GK-7k-öko avaldab muljet oma energiatõhususe, keskkonnasõbralikkuse ja vastupidavusega.Selle uuenduslik puidu gaasistamise tehnoloogia tagab optimaalse soojusvõimsuse minimaalse kütusekulu ja madalate heitkogustega. Selle kompaktne disain ja kasutusmugavus teevad sellest ideaalse valiku igale majapidamisele, mis hindab jätkusuutlikkust ja kulutõhusust.

Äärmiselt pikk kasutusiga tänu valatud lüli konstruktsioonile.

Otsusta IBC abil Malmist katlad GK-7k-öko tulevikukindel küttelahendus, mis garanteerib teile pikaajalise soojuse ja madalad tegevuskulud.

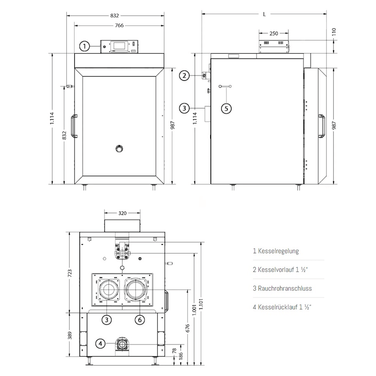
Tehnilised andmed

  • Nimisoojusvõimsus 30 kW
  • Lülide arv 6
  • Täitekambri maht 120 liitrit
  • Efektiivsus 91,44%
  • Kaal 700 kg
  • Katla mõõtmed koos ümbrisega (K x L x S) 1224 x 832 x 1205 mm
  • Katla mõõtmed valukorpusega (K x L x S) 980 x 650 x 1061 mm
  • Põlemiskambri ukseava (L x K) 476 x 254 mm
  • Põlemiskambri sügavus 550 mm
  • Katla ühenduse eelnev kinnitamine & Tagasta 1 1/2"
  • Suitsutoru ühendus 160 mm
  • Lubatud töörõhk 3 baari
  • Maksimaalne töötemperatuur 100 °C
  • min tagasivoolutemperatuur &>55 °C
  • Heitgaaside temperatuur 160–180 °C
  • Heitgaaside massivool 17,15 g/s
  • Nõutav rõhk 10 Pa

Tarnekomplekt

  • IBC GK-7k-eko malmkatel 30 kW
  • Integreeritud internetimoodul tasuta rakenduse kasutamisega
  • Assamblee &Kasutusjuhend

makse & Turvalisus

Maksevõimalused

  • American Express
  • Apple Pay
  • Bancontact
  • BLIK
  • EPS
  • Google Pay
  • iDEAL
  • Klarna
  • Maestro
  • Mastercard
  • MobilePay
  • PayPal
  • Przelewy24
  • Shop Pay
  • Union Pay
  • Visa

Teie makseteavet töödeldakse turvaliselt. Me ei salvesta ega pääse teie krediitkaardi andmetele ligi.

Klientide arvustused

Ole esimene, kes arvustuse kirjutab
0%
(0)
0%
(0)
0%
(0)
0%
(0)
0%
(0)

Võtke meiega ühendust

reviews
See all reviews